
| Технические условия | ВНИЛ.491216.025 ТУ | |
| Сертификат соответствия | РОСС RU.АЯ27.В21218 | с 03.12.2008 по 04.11.2011 |
| Разрешение на применение | РРС 00-33138 | с 16.02.2009 по 16.02.2014 |
| Номинальный диаметр, DN мм | 15; 25; 32; 40; 50 | |||||
| Давление номинальное, PN МПа | 10,0; 16,0; 20,0; 32,0 | |||||
| Герметичность затвора | по классу «В» ГОСТ 9544-93 | |||||
| Усилие на шпинделе, необходимое для открытия (закрытия), не более | DN мм | 15 | 25 | 32 | 40 | 50 |
| Мкр Нм | 146 | 160 | 233 | 331 | 583 | |
| Нормальное положение затвора | От полностью «открыто» | |||||
| Рабочая среда | жидкая и газообразная, к которой | ||
| Температура рабочей среды, °С | Сталь 20 | Сталь 12Х1МФ | Сталь 15ХМ |
| от – 40 до +375 | от – 20 до +425 | от – 40 до +425 | |
| Климатическое исполнение | У1 | ||
| Температура окружающей среды, °С | от – 40 до + 45 | ||
| Направление подачи рабочей среды | Под золотник | ||
| Установочное положение | Любое | ||
| Присоединение к трубопроводу | Фланцевое по ГОСТ 9399-81 под линзовую прокладку | ||
| Корпус | Сталь 20 | Сталь 15ХМ | Сталь 12Х1МФ | Сталь 12Х18Н10Т | Сталь 10Х17Н13М2Т |
| Шток | Сталь 20Х13 | Сталь 15ХМ | Сталь 12Х1МФ | 12Х18Н9Т | 10Х17Н13М3Т |
| Седло | Наплавка | ||||
| Стойка | Сталь 40Х | ||||
| Гайка сальника | Сталь 35 | ||||
| Пластина | Сталь 40Х | ||||
| Сальник | Терморасширенный графит | ||||
| Назначенный срок службы, лет | 10 |
| Назначенный ресурс, циклов | 1500 |
| Назначенная наработка на отказ, циклов | 800 |

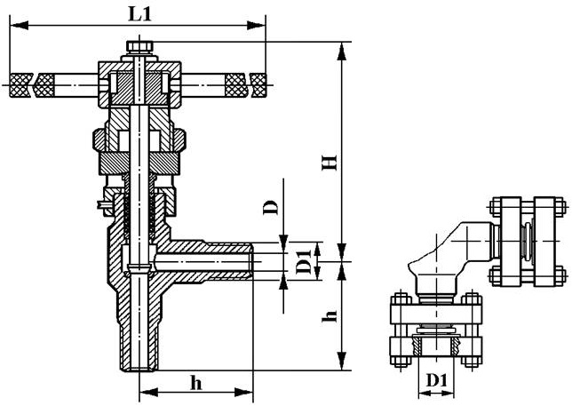
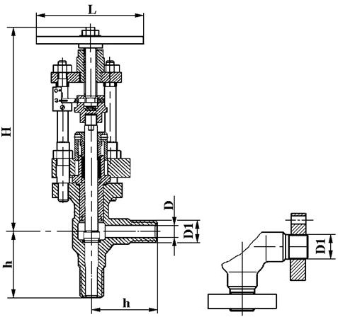
Наименование | Исполнение | DNмм | PNМПа | Рис. | Dмм | D1/Фланец* | Lмм | Нмм | hмм | Массакг |
| ВНИЛ.491216.015-00; -01; -02; -03; -05 | 15 | До 32,0 | 1 | 15 | М33х2 | 380 | 300 | 95 | 5,3 | |
| ВНИЛ.491216.015-10; -11; -12; -13; -15 | 2 | 7,5 | ||||||||
| ВНИЛ.491216.015-20; -21; -22; -23; -25 | 3 | 10,7 | ||||||||

Наименование | Исполнение | DNмм | PNМПа | Рис. | Dмм | D1/Фланец* | Lмм | Нмм | hмм | Массакг |
| ВНИЛ.491216.025-00; -01; -02; -03; -05 | 25 | До 32,0 | 1 | 25 | М42х2 | 450 | 375 | 110 | 20,0 | |
| ВНИЛ.491216.025-10; -11; -12; -13; -15 | 2 | 23,5 | ||||||||
| ВНИЛ.491216.025-20; -21; -22; -23; -25 | 3 | 28,0 | ||||||||
| ВНИЛ.491216.032-00; -01; -02; -03; -05 | 32 | До 32,0 | 1 | 32 | М48х2 | 600 | 490 | 120 | 35,0 | |
| ВНИЛ.491216.025-10; -11; -12; -13; -15 | 2 | 43,2 | ||||||||
| ВНИЛ.491216.025-20; -21; -22; -23; -25 | 3 | 56,2 | ||||||||
| ВНИЛ.491216.040-00; -01; -02; -03; -05 | 40 | До 32,0 | 1 | 40 | М64х3 | 600 | 490 | 150 | 39,5 | |
| ВНИЛ.491216.025-10; -11; -12; -13; -15 | 2 | 48,0 | ||||||||
| ВНИЛ.491216.025-20; -21; -22; -23; -25 | 3 | 60,0 | ||||||||
| ВНИЛ.491216.050-00; -01; -02; -03; -05 | 50 | До 32,0 | 1 | 50 | М80х3 | 900 | 550 | 200 | 54,2 | |
| ВНИЛ.491216.025-10; -11; -12; -13; -15 | 2 | 68,4 | ||||||||
| ВНИЛ.491216.025-20; -21; -22; -23; -25 | 3 | 83,2 | ||||||||
Предыдущая статья
Следующая статья
← вернуться в раздел
← вернуться в оглавление справочника