
| Технические условия | ТУ3742-017-49149890-2003 | |
| Сертификат соответствия | POCC RU.АВ93.В00001 | с 13.05.2010 по 12.05.2013 |
| Разрешение на применение | РРС 00-37347 | с 21.01.2010 по 21.01.2015 |
| Диаметр номинальный, DN мм | 15; 20; 25; 32; 40 | ||
| Давление номинальное, PN МПа | 0,6; 1,0; 1,6; 2,5; 4,0; 6,3; 10,0; 16,0 | ||
| Герметичность затвора | по классу «А» или «В» ГОСТ 9544-93 | ||
| Усилие на шпинделе, необходимое | DN мм | 15; 20; 25 | 32; 40 |
| Мкр Нм | 32 | 70 | |
| Нормальное положение затвора | От полностью «открыто» | ||
| Рабочая среда | жидкая и газообразная; | |||
| Температура рабочей среды | Материал | Сталь 20 | Сталь 09Г2С | Сталь 12Х18Н10Т |
| Т °С | от – 40 до +450 | от – 60 до +450 | от – 60 до +525 | |
| Климатическое исполнение | У1 | УХЛ1 | ||
| Температура окружающей среды, °С | от – 40 до + 45 | от – 60 до + 45 | ||
| Направление подачи рабочей среды | Под золотник | |||
| Установочное положение | Любое | |||
| Присоединение к трубопроводу | Муфтовое, Под приварку, Фланцевое | |||
|
| исп. У1 | исп. УХЛ1 | исп. У1* | ||
| Сталь 20 | Сталь 09Г2С | Сталь 12Х18Н10Т | |||
| Стойка | Сталь 09Г2С | Сталь 12Х18Н10Т | |||
| Золотник | Сталь 12Х18Н10Т с наплавкой | ||||
| Седло | Наплавка | ||||
| Сильфон | Сталь 12Х18Н10Т | ||||
| Уплотнение | DN мм | 15; 20; 25 | 32; 40 | 15; 20; 25 | 32; 40 |
| Материал | Сталь 10 | ТР графит | Сталь 12Х18Н10Т | ТР графит | |
| Сальник | ТР графит | ||||
|
| 10 |
| Назначенный ресурс, не менее циклов | 1500 |
| Средняя наработка на отказ, не менее циклов | 750 |

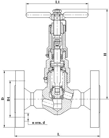
Обозначение | Исполнение | DNмм | PN | Dp * | Lмм | L1 мм | Hмм | Массакг |
| КПЛВ.491146.033-00; -01; -02 | 15 | От 0,6 | G 1/2" | 90 | 140 | 203 | 2,8 | |
| КПЛВ.491146.034-00; -01; -02 | 20 | G 3/4" | 110 | 3,1 | ||||
| КПЛВ.491146.035-00; -01; -02 | 25 | G 1 " | 130 | 3,6 | ||||
| КПЛВ.491146.036-00; -01; -02 | 32 | G 1 1/4" | 210 | 300 | 400 | 9,8 | ||
| КПЛВ.491146.037-00; -01; -02 | 40 | G 1 1/2" | 9,8 | |||||

Обозначение | Исполнение | DNмм | PN | Dмм | dмм | Lмм | L1 мм | Hмм | Массакг |
| КПЛВ.491146.033-03; -04; -05 | 15 | От 0,6 | 19 | 13 | 105 | 140 | 203 | 2,9 | |
| КПЛВ.491146.034-03; -04; -05 | 20 | 26 | 18 | 105 | 2,9 | ||||
| КПЛВ.491146.035-03; -04; -05 | 25 | 33 | 25 | 120 | 3,4 | ||||
| КПЛВ.491146.036-03; -04; -05 | 32 | 40 | 32 | 210 | 300 | 400 | 9,3 | ||
| КПЛВ.491146.037-03; -04; -05 | 40 | 50 | 40 | 9,3 | |||||

Обозначение | Исполнение | DNмм | PN МПа | Фл.исп.* | Dмм | D1мм | dмм | n | Lмм | L1мм | Hмм | Массакг |
| КПЛВ.491146.033-09; -10; -11 | 15 | 1,6; 2,5; 4,0 | 1 | 95 | 65 | 14 | 4 | 130 | 140 | 203 | 4,4 | |
| -12; -13; -14 | 3 | |||||||||||
| -15; -16; -17 | 5 | |||||||||||
| КПЛВ.491146.034-09; -10; -11 | 20 | 1,6; 2,5; 4,0 | 1 | 105 | 75 | 14 | 4 | 150 | 203 | 5,0 | ||
| -12; -13; -14 | 3 | |||||||||||
| -15; -16; -17 | 5 | |||||||||||
| КПЛВ.491146.035-09; -10; -11 | 25 | 1,6; 2,5; 4,0 | 1 | 115 | 85 | 14 | 4 | 160 | 203 | 5,2 | ||
| -12; -13; -14 | 3 | |||||||||||
| -15; -16; -17 | 5 | |||||||||||
| КПЛВ.491146.036-09; -10; -11 | 32 | 1,6; 2,5; 4,0 | 1 | 135 | 100 | 18 | 4 | 280 | 300 | 400 | 13,0 | |
| -12; -13; -14 | 3 | |||||||||||
| -15; -16; -17 | 5 | |||||||||||
| КПЛВ.491146.037-09; -10; -11 | 40 | 1,6; 2,5; 4,0 | 1 | 145 | 110 | 18 | 4 | 305 | 400 | 13,0 | ||
| -12; -13; -14 | 3 | |||||||||||
| -15; -16; -17 | 5 | |||||||||||

Обозначение | Исполнение | DNмм | РNмм | Фл.исп.* | Dмм | D1мм | Dмм | n | Lмм | L1мм | Hмм | Массакг |
| КПЛВ.491146.033-06; -07; -08 | 15 | 6,3 | 7 | 105 | 75 | 14 | 4 | 175 | 140 | 203 | 5,1 | |
| 10,0 | ||||||||||||
| 16,0 | ||||||||||||
| КПЛВ.491146.034-06; -07; -08 | 20 | 6,3 | 7 | 125 | 90 | 18 | 4 | 190 | 203 | 7,2 | ||
| 10,0 | ||||||||||||
| 16,0 | ||||||||||||
| КПЛВ.491146.035-06; -07; -08 | 25 | 6,3 | 7 | 135 | 100 | 18 | 4 | 200 | 203 | 7,6 | ||
| 10,0 | ||||||||||||
| 16,0 | ||||||||||||
| КПЛВ.491146.036-06; -07; -08 | 32 | 6,3 | 7 | 150 | 110 | 22 | 4 | 300 | 300 | 400 | 15,2 | |
| 10,0 | ||||||||||||
| 16,0 | ||||||||||||
| КПЛВ.491146.037-06; -07; -08 | 40 | 6,3 | 7 | 165 | 125 | 22 | 4 | 325 | 400 | 15,2 | ||
| 10,0 | ||||||||||||
| 16,0 | ||||||||||||
Предыдущая статья
Следующая статья
← вернуться в раздел
← вернуться в оглавление справочника