
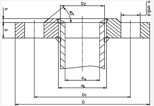
| Dy | dh | db | D_ | D1 | b | D2 | h | d | n | Номинальный диаметр резьбы | Вес (кг) |
| 10 | 14 | 15 | 75 | 50 | 10 | 35 | 2 | 12 | 4 | 10 | 0,31 |
| 15 | 18 | 19 | 80 | 55 | 10 | 40 | 2 | 12 | 4 | 10 | 0,33 |
| 20 | 25 | 26 | 90 | 65 | 12 | 50 | 2 | 12 | 4 | 10 | 0,53 |
| 25 | 32 | 33 | 100 | 75 | 12 | 60 | 2 | 12 | 4 | 10 | 0,64 |
| 32 | 38 | 39 | 120 | 90 | 13 | 70 | 2 | 14 | 4 | 12 | 1,01 |
| 40 | 45 | 46 | 130 | 100 | 13 | 80 | 3 | 14 | 4 | 12 | 1,21 |
| 50 | 57 | 59 | 140 | 110 | 13 | 90 | 3 | 14 | 4 | 12 | 1,33 |
| 65 | 76 | 78 | 160 | 130 | 13 | 110 | 3 | 14 | 4 | 12 | 1,63 |
| 80 | 89 | 91 | 185 | 150 | 15 | 128 | 3 | 18 | 4 | 16 | 2,44 |
| 100 | 108 | 110 | 205 | 170 | 15 | 148 | 3 | 18 | 4 | 16 | 2,85 |
| 100 | 114 | 116 | 205 | 170 | 15 | 148 | 3 | 18 | 4 | 16 | 2,73 |
| 125 | 133 | 135 | 235 | 200 | 17 | 178 | 3 | 18 | 8 | 16 | 3,88 |
| 125 | 140 | 142 | 235 | 200 | 17 | 178 | 3 | 18 | 8 | 16 | 3,68 |
| 150 | 152 | 154 | 260 | 225 | 17 | 202 | 3 | 18 | 8 | 16 | 4,63 |
| 150 | 159 | 161 | 260 | 225 | 17 | 202 | 3 | 18 | 8 | 16 | 4,39 |
| 150 | 168 | 170 | 260 | 225 | 17 | 202 | 3 | 18 | 8 | 16 | 4,09 |
| 175 | 194 | 196 | 290 | 255 | 19 | 232 | 3 | 18 | 8 | 16 | 5,36 |
| 200 | 219 | 222 | 315 | 280 | 19 | 258 | 3 | 18 | 8 | 16 | 5,89 |
| 250 | 273 | 273 | 370 | 335 | 20 | 312 | 3 | 23 | 12 | 20 | 7,67 |
| 300 | 325 | 325 | 435 | 395 | 20 | 365 | 4 | 23 | 12 | 20 | 10,28 |
| 350 | 377 | 377 | 485 | 445 | 22 | 415 | 4 | 23 | 12 | 20 | 12,58 |
| 400 | 426 | 426 | 535 | 495 | 24 | 465 | 4 | 23 | 16 | 20 | 15,2 |
| 450 | 480 | 480 | 590 | 550 | 24 | 520 | 4 | 23 | 16 | 20 | 17,25 |
| 500 | 530 | 530 | 640 | 600 | 25 | 570 | 4 | 23 | 16 | 20 | 19,72 |
| 600 | 630 | 630 | 755 | 705 | 25 | 670 | 5 | 27 | 20 | 24 | 26,24 |
Предыдущая статья
Следующая статья
← вернуться в раздел ГОСТ 12816-80 (1996) Фланцы арматуры, соединительных частей и трубопроводов
← вернуться в оглавление справочника