


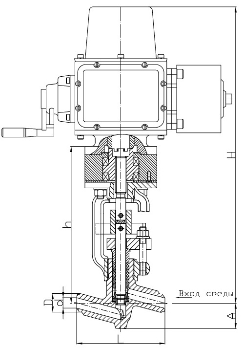
| Обозначение | Условный проход | Рабочая среда | Параметры рабочей среды | Материал корпуса | Размеры, мм | Число оборотов шпинделя | Крутящий момент, Нм | Время полного | Тип электропривода | Мощность электропривода, кВт | Масса без э/п, кг | Масса с э/п, кг | ||||||
| Давление, МПа | Температура, oС | H | h | A | L | d* | B* | |||||||||||
| КЗ104.10.00-Р | 10 | Вода | 37,3 | 280 | У | 129 | - | 28 | 110 | 10 | 25 | 4 | - | - | - | - | 2 | - |
| КЗ105.10.00-Р | 10 | Пар | 25,0 | 545 | ХМФ | 124 | - | 28 | 110 | 10 | 25 | 4 | - | - | - | - | 2 | - |
| КЗ104.20.00-Р | 20 | Вода | 37,3 | 280 | У | 260 | - | 46 | 160 | 18 | 32 | 5 | - | - | - | - | 6 | - |
| КЗ104.20.00-Э | 20 | Вода | 37,3 | 280 | У | 535 | 268 | 46 | 160 | 18 | 32 | 5 | 100 | 13 | ЭП-З-100 | 0,33 | 11 | 26 |
| КЗ105.20.00-Р | 20 | Пар | 25,0 | 545 | ХМФ | 260 | - | 46 | 160 | 18 | 32 | 5 | - | - | - | - | 6 | - |
| КЗ105.20.00-Э | 20 | Пар | 25,0 | 545 | ХМФ | 535 | 268 | 46 | 160 | 18 | 32 | 5 | 100 | 13 | ЭП-З-100 | 0,33 | 11 | 26 |
| КЗ105.32.00-Р | 32 | Пар | 25,0 | 545 | ХМФ | 481 | - | 85 | 220 | 31 | 60 | 5 | - | - | - | - | 42 | - |
| КЗ105.32.00-Э | 32 | Пар | 25,0 | 545 | ХМФ | 861 | 510 | 85 | 220 | 31 | 60 | 5 | 300 | 12 | ЭП-З-300 | 0,75 | 39 | 77 |
| КЗ104.40.00-Р | 40 | Вода | 37,3 | 280 | У | 481 | - | 85 | 220 | 39 | 60 | 6 | - | - | - | - | 41 | - |
| КЗ104.40.00-Э | 40 | Вода | 37,3 | 280 | У | 963 | 612 | 85 | 220 | 39 | 60 | 6 | 300 | 14 | ЭП-З-300 | 0,75 | 38 | 76 |
| КЗ104.50.00-Р | 50 | Вода | 23,5 | 250 | У | 481 | - | 85 | 220 | 49 | 57 | 6 | - | - | - | - | 40 | - |
| КЗ104.50.00-Э | 50 | Вода | 23,5 | 250 | У | 963 | 612 | 85 | 220 | 49 | 57 | 6 | 300 | 14 | ЭП-З-300 | 0,75 | 38 | 76 |
| КЗ105.50.00-Р | 50 | Пар | 13,7 | 560 | ХМФ | 491 | - | 95 | 250 | 50 | 76 | 6 | - | - | - | - | 45 | - |
| КЗ105.50.00-Э | 50 | Пар | 13,7 | 560 | ХМФ | 973 | 622 | 95 | 250 | 50 | 76 | 6 | 300 | 14 | ЭП-З-300 | 0,75 | 42 | 80 |
| КЗ104.65.00-Р | 65 | Вода | 23,5 | 250 | У | 491 | - | 95 | 250 | 58 | 76 | 6 | - | - | - | - | 45 | - |
| КЗ104.65.00-Э | 65 | Вода | 23,5 | 250 | У | 973 | 622 | 95 | 250 | 58 | 76 | 6 | 300 | 14 | ЭП-З-300 | 0,75 | 42 | 80 |
| КЗ105.65.00-Р | 65 | Пар | 9,8 | 540 | ХМФ | 491 | - | 95 | 250 | 62 | 76 | 6 | - | - | - | - | 45 | - |
| КЗ105.65.00-Э | 65 | Пар | 9,8 | 540 | ХМФ | 973 | 622 | 95 | 250 | 62 | 76 | 6 | 300 | 14 | ЭП-З-300 | 0,75 | 42 | 80 |
Предыдущая статья
Следующая статья
← вернуться в раздел Флейм НПО ЗАО - каталог продукции
← вернуться в оглавление справочника